FSIMOES Arquitectos Associados FSIMOES Arquitectos Associados FSIMOES Arquitectos AssociadosFSIMOES Arquitectos Associados
  • Home
  • Atelier
  • Projectos
  • Media
  • Contacto

Inserida no enquadramento da Avenida da Torre de Belém em Lisboa, onde outrora se localizava uma moradia uni familiar dos anos 40 entretanto desabitada, apresenta-se uma proposta que teve como principal foco o desenvolvimento de um conjunto de duas moradias independentes que partilham algumas valências comuns. Por se acreditar que a moradia pré-existente tenha alcançado o seu fim de vida útil, por não se adequar às necessidades dos utilizadores, apresenta-se neste projecto uma proposta de nova construção que contribui para a valorização arquitectónica, urbanística e ambiental desta área. O corpo, apresenta uma leitura de simetria no desenvolvimento das duas moradias e orienta-se a sul acompanhando a morfologia do lote onde se insere que apresenta um ligeiro declive na orientação norte -sul. De linguagem contemporânea, com linhas rectas e cromáticas simples , o volume arquitectónico integra-se de forma harmoniza com toda a envolvente, devolvendo a este lote as vivências de outrora.

Data: 15 Outubro, 2017

Cliente: Privado

Categoria: Habitação

LOCALIZAÇÃO PORTUGAL, LISBOA | BELÉM

Casa Gonçalves | Moradias em Belém Lisboa | F. Simões Arquitetos
Casa Gonçalves — Projeto de moradias em Belém por F. Simões Arquitetos
Início / Projetos / Casa Gonçalves

Casa Gonçalves
Moradias Geminadas

Scroll
Localização
Belém, Lisboa
Ano
2017
Tipo
Moradias Geminadas
Cliente
Privado
Arquitetura Residencial

Inserida num dos contextos mais prestigiados de Lisboa, a Avenida da Torre de Belém, a Casa Gonçalves nasce de uma visão de renovação e valorização urbana. No local onde uma moradia dos anos 40 já não respondia às exigências contemporâneas, este projeto de arquitetura contemporânea propõe uma nova construção que honra a memória do lugar através de um traço sofisticado e ambientalmente consciente.

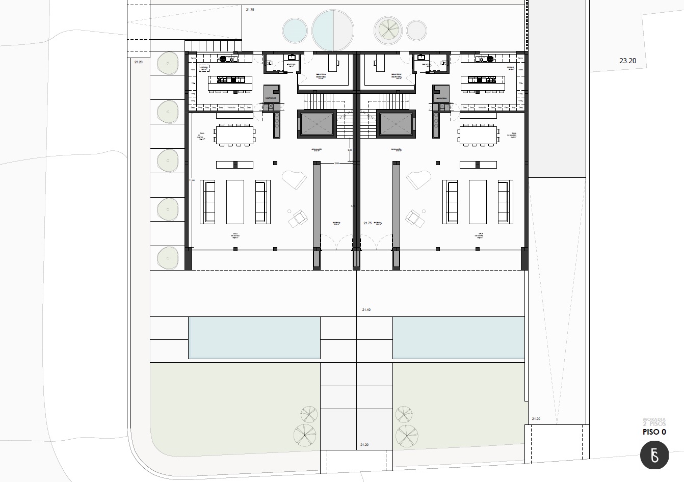
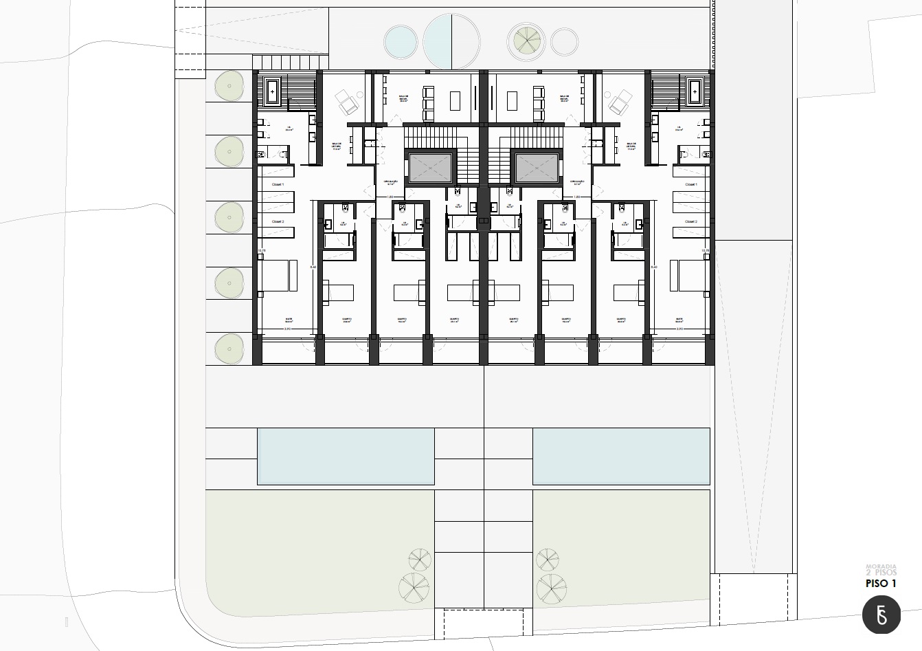
Casa Gonçalves — Planta do piso 1 com simetria arquitetónica
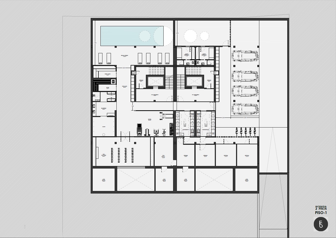
Casa Gonçalves — Planta da cave com estacionamento

Simetria e Luz sobre o Rio

A equipa de arquitetos da FSIMOES desenvolveu uma proposta que se destaca pela sua leitura de simetria absoluta, materializada num conjunto de duas moradias independentes que partilham uma linguagem visual coesa. Orientado estrategicamente a sul para captar a luz única da zona de Belém, o edifício acompanha o declive natural do lote, integrando-se de forma harmoniosa com a morfologia envolvente.

As linhas retas e a sobriedade cromática definem o volume, devolvendo ao terreno a dignidade e as vivências de outrora, mas agora adaptadas a um padrão de conforto superior e design contemporâneo. O projeto representa um exemplo notável de como a arquitetura pode renovar um espaço urbano respeitando o seu contexto histórico.

Casa Gonçalves — Perspetiva completa das moradias geminadas

Espaços Pensados para a Vida Moderna

O estúdio de arquitetura em Lisboa projetou cada fração com um foco rigoroso na fluidez e na organização espacial. Amplas salas de estar prolongam-se para o jardim, onde a transparência dos vãos convida a natureza a entrar, criando uma harmonia entre o interior minimalista e o exterior orgânico.

A ala privada comporta quartos desenhados como refúgios de serenidade, com uma curadoria de materiais que privilegia o toque e o bem-estar. Cada espaço foi pensado para oferecer a máxima qualidade de vida, desde as circulações até aos detalhes dos acabamentos.

Casa Gonçalves — Distribuição de espaços com simetria
"Arquitetura que devolve a dignidade ao lugar, honrando a sua história enquanto projeta um futuro mais qualitativo."
F. Simões Arquitetos

Programa Funcional das Moradias

  • Piso de Logística e Lazer: Integração discreta de zonas técnicas, estacionamento e áreas de apoio no desnível do terreno, mantendo a limpeza visual das fachadas.
  • Zona Social e Exterior: Amplas salas de estar que se prolongam para o jardim, onde a transparência dos vãos convida a natureza a entrar num diálogo permanente.
  • Ala Privada: Quartos desenhados como refúgios de serenidade, com uma curadoria de materiais que privilegia o toque e o bem-estar dos utilizadores.
  • Integração Urbanística: A simetria e a orientação sul criam uma leitura clara e contemporânea que valoriza toda a envolvente de Belém.

Localização Privilegiada: Avenida da Torre de Belém

A Avenida da Torre de Belém é uma das mais prestigiadas zonas de Lisboa, combinando a proximidade do Tejo com a tranquilidade de uma zona residencial de qualidade. A Casa Gonçalves aproveita esta localização única para criar moradias que dialogam tanto com a envolvente urbana como com a natureza.

O projeto de arquitetura contemporânea responde às exigências de quem procura habitação de qualidade no coração de Lisboa, oferecendo o equilíbrio perfeito entre a dinâmica urbana e o repouso necessário para uma vida verdadeiramente excepcional. A proximidade ao rio, combinada com a excelência arquitetónica, faz desta uma localização de eleição.

O Seu Projeto

Procura moradias em Belém ou Lisboa?

Na FSimões Arquitetura, acreditamos que cada projeto deve ser uma resposta única ao seu contexto, criando espaços que valorizam tanto o lugar como a vida dos seus utilizadores.

Falar com um Arquiteto

Ficha Técnica

Localização: Avenida da Torre de Belém, Belém, Lisboa
Cliente: Privado
Categoria: Habitação Unifamiliar (Duas moradias geminadas)
Estado: Projeto
Data: 15 de Outubro, 2017
Caraterísticas: Simetria arquitetónica, orientação sul, integração com morfologia do lote

Hotel Picoas
← Projeto Anterior
Hotel Picoas
Voltar aos projetos
Voltar →
Todos os Projetos
© FSimões - Arquitectos Associados
Facebook Twitter Youtube InstagramLinkedin